Nos avis clients
Nos avis clients
0

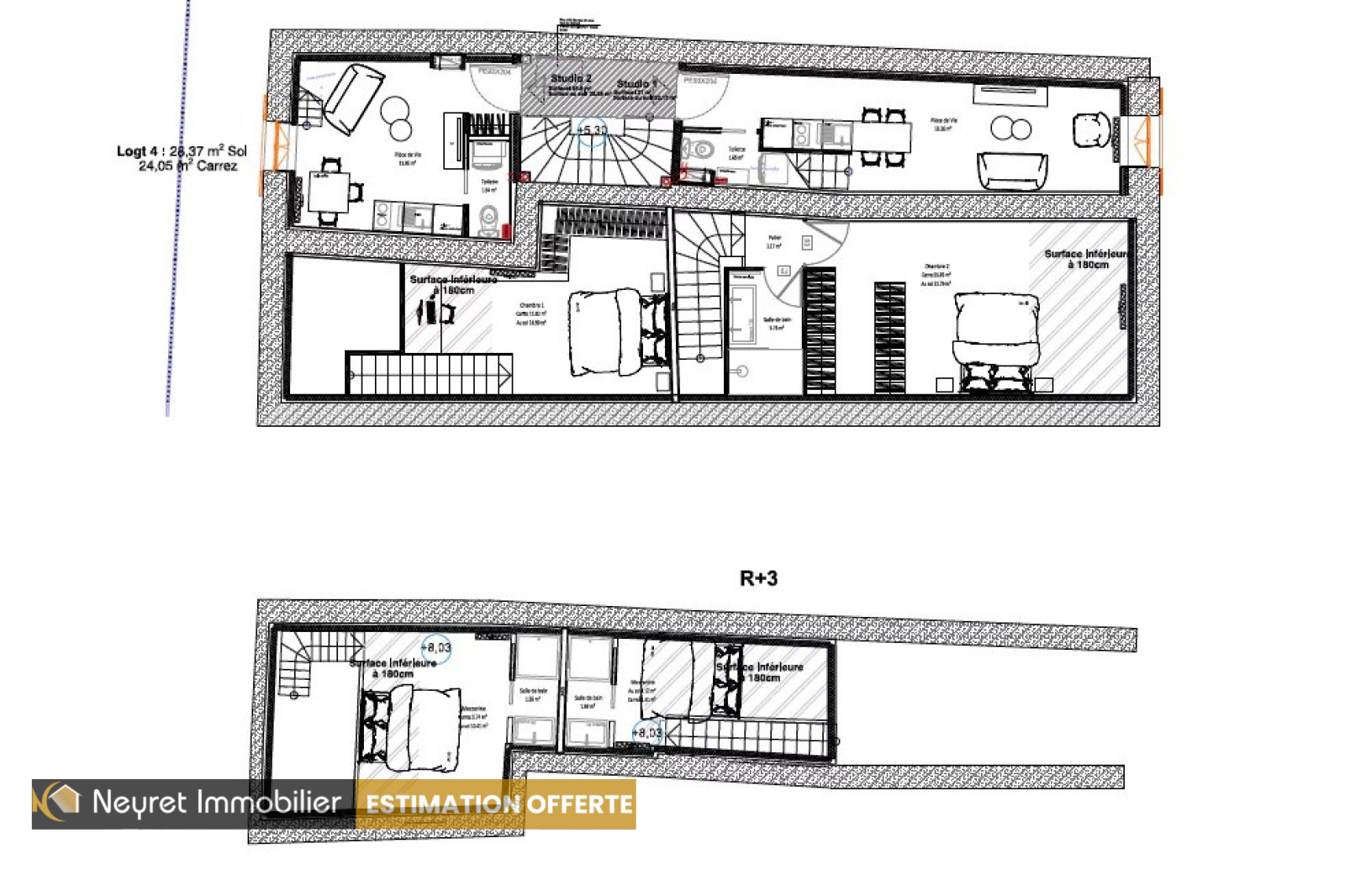
Plateau - 61m2 - Villefranche Rue Nationale

Villefranche-sur-Saône (69400)
Réf : V2023-AGENCE1

Au coeur de la Rue Nationale, dans une petite copropriété de 5 lots, plateau à aménager de 57,75m2 carrez (61,12m2 au sol). Le bien se divise en deux pièces. Prestations : Double vitrage ALU, viabilisé plancher neuf, façade neuve et isolée sur face Ouest, couverture neuve et charpente suivie.

Prix du bien
Pièce(s) 2
Chambre(s) 1

Caractéristiques du bien

Caractéristiques Valeurs
Code postal 69400
Surface habitable (m²) 61,12 m²
Surface loi Carrez (m²) 52,75 m²
Nombre de chambre(s) 1
Nombre de pièces 2
Etage 1
Ascenseur NON
Balcon NON
Loggia NON
Terrasse NON
Cave NON
Exposition Ouest

Infos financières

Caractéristiques Valeurs
Les honoraires d'agence seront intégralement à la charge du vendeur  

Localisationdu bien

  • Commerces et santé
  • Loisirs
  • Ecoles
  • Transports
  • Pratique
Ces biens peuvent vous intéresser